35250 Saint Aubin D Aubigne
35250 Saint Aubin D Aubigne
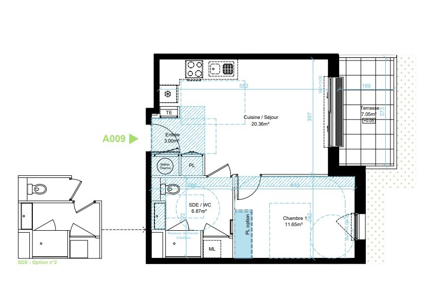
T2 – Saint Aubin D Aubigne (35250) – 159900€ FAI
Situé dans un cadre agréable et recherché en plein coeur de St Aubin d’Aubigné, cet appartement T2 est une opportunité rare en VEFA, vous offrant la possibilité d’acquérir un bien neuf, moderne et personnalisable selon vos envies.
Caractéristiques de l’appartement :
Surface habitable : 41 m²
2 pièces : séjour lumineux et chambre spacieuse
Cuisine ouverte équipée (possibilité de personnalisation)
Salle de bains moderne
terrasse de 7m²
1 place de parking
Points forts :
Performances énergétiques élevées (RE2020)
Quartier calme, proche de toutes les commodités : transports, écoles, commerces, espaces verts
Personnalisation possible des finitions
Prix : 159900 euros N’attendez plus pour saisir cette belle opportunité d’achat dans un secteur en plein développement.
Pour plus de renseignements car d’autres lots disponibles, contactez le Cabinet Chateaubriand.
Copropriété de 66 lots – dont 33 lots habitation. ().
Charges annuelles : 1300 euros.
254900€ / FAI
Ajout : 4 mars 2026
181900€ / FAI
Ajout : 4 mars 2026
199000€ / FAI
Ajout : 4 mars 2026